retour
Crédits + web design :  A-trait architectes
© A-trait architectes 2020
Projet de rénovation, transformation et surélévation d'un immeuble de logements  à Neuchâtel
 
Année: 2014 - en cours
Client: Privé
 
Programme :
- surélévation d'un étage en attique,
- transformation et rénovation,
- standard Minergie.
 
Parti architectural:
L’immeuble situé rue des Fahys 73 construit en 1983, borde la rue de même nom et la voie de chemin de fer CFF. La distribution des appartements se fait au travers de coursives extérieures. L'immeuble est orienté Est-Ouest, la façade Sud étant pratiquement borgne, ne permet pas de profiter de la vue offerte sur le lac et les alpes bernoises.
 
Le principal souhait du MO était d'optimiser au mieux les surfaces habitables. La mise en conformité Minergie s'est imposée d'elle-même grace au gain de surface SBPu de 10% que cela représente.
 
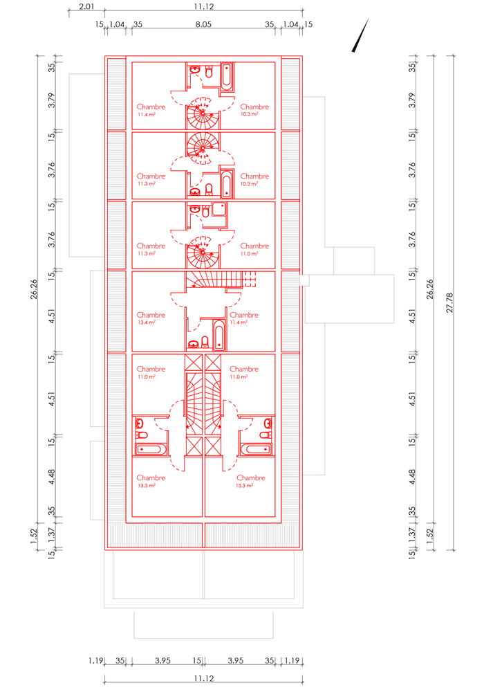
Le projet proposé consiste à créer des appartements en duplex avec l'attique créé, de manière à exploiter au mieux la distribution verticale existante et respecter les gabarits légaux.
Le retournement de la structure en façade Sud permet d'aménager 2 appartements en tête bénéficiant de terrasses et orientés sur le lac. Des prolongements sous forme de jardins d'hiver en saillie sont également prévus dans les deux étages inférieurs.
 
Le projet vise avant tout à améliorer la qualité de vie des occupants en proposant une enveloppe thermique performante et une isolation acoustique de qualité.